市规划和自然资源局罗湖管理局关于公布银湖田园居B2栋全栋危房重建项目《建设工程规划许可证》及总平面图的通告
机构: 深圳市人民政府 发布时间:2025-08-14
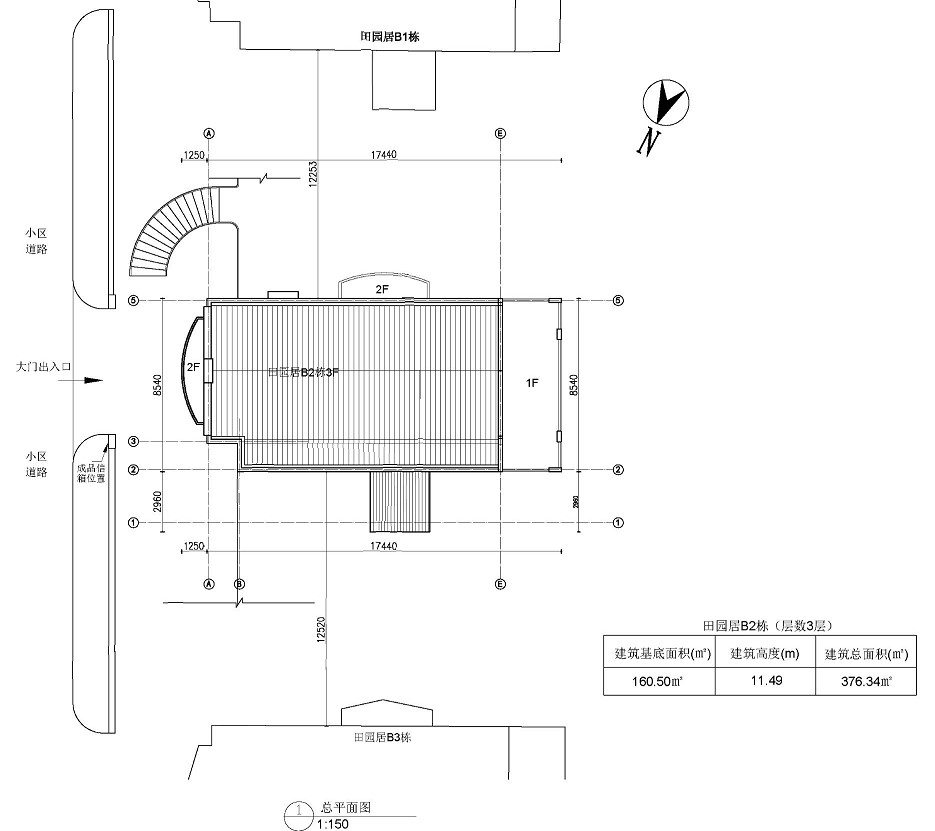
深圳市罗湖区银湖田园居B2栋全栋危房重建项目位于罗湖区清水河街道,经审查,我局同意核发《建设工程规划许可证》(建字第4403032025GG0040510号)。
根据《中华人民共和国城乡规划法》第四十条规定,现将本项目《建设工程规划许可证》及总平面图同时在深圳市规划和自然资源局官网(http://pnr.sz.gov.cn)、深圳市规划和自然资源局罗湖管理局官网(http://pnr.sz.gov.cn/luohu/)予以公布。
附件:1.《建设工程规划许可证》
2.深圳市建设工程设计文件核查表
3.总平面图(公示版)
市规划和自然资源局罗湖管理局
2025年8月14日
